Farmhouse
Stacy Plan
2222 finished sf
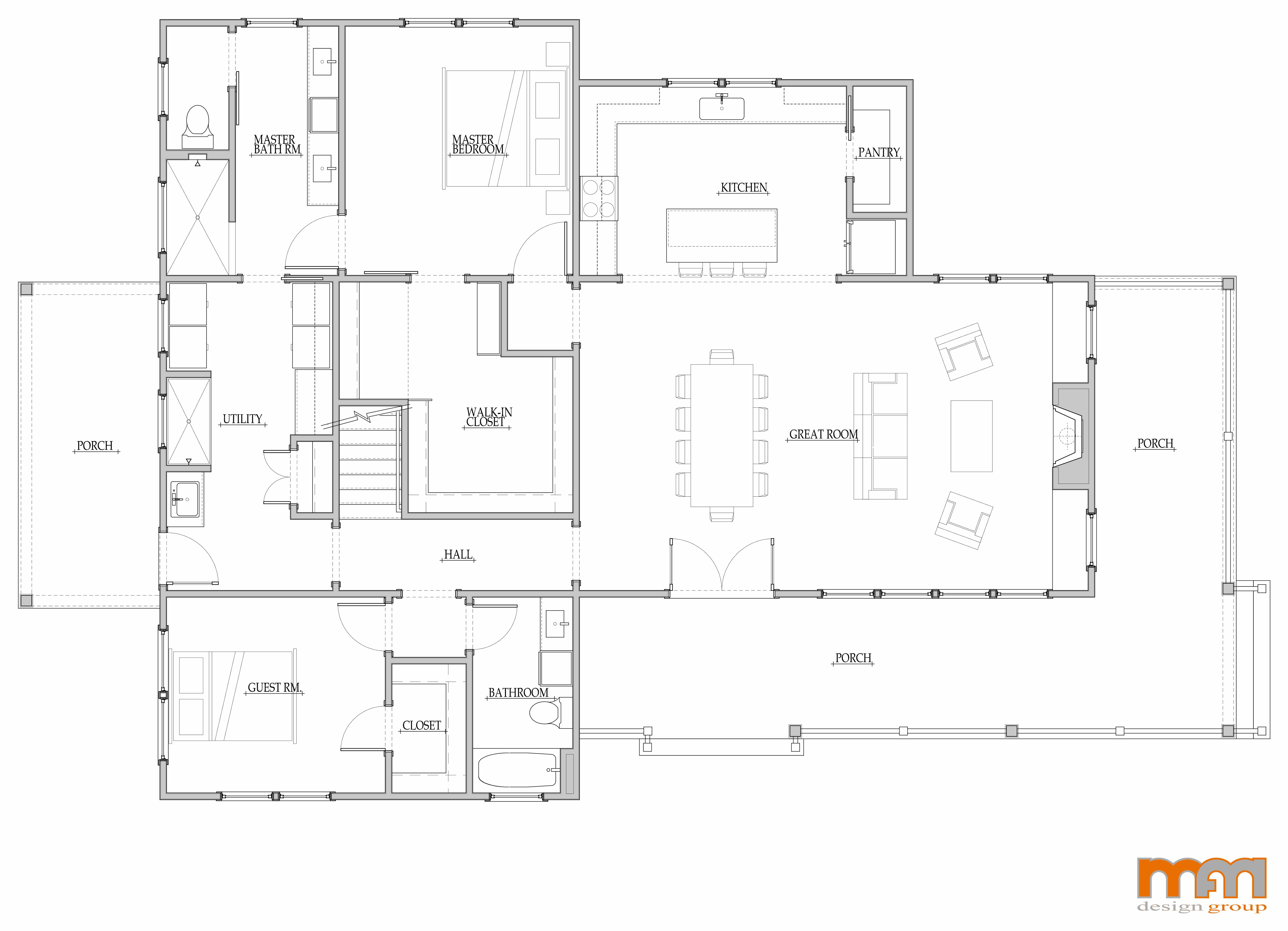
2 Bedrooms
3 Bathrooms
2 Stories
Additional Features
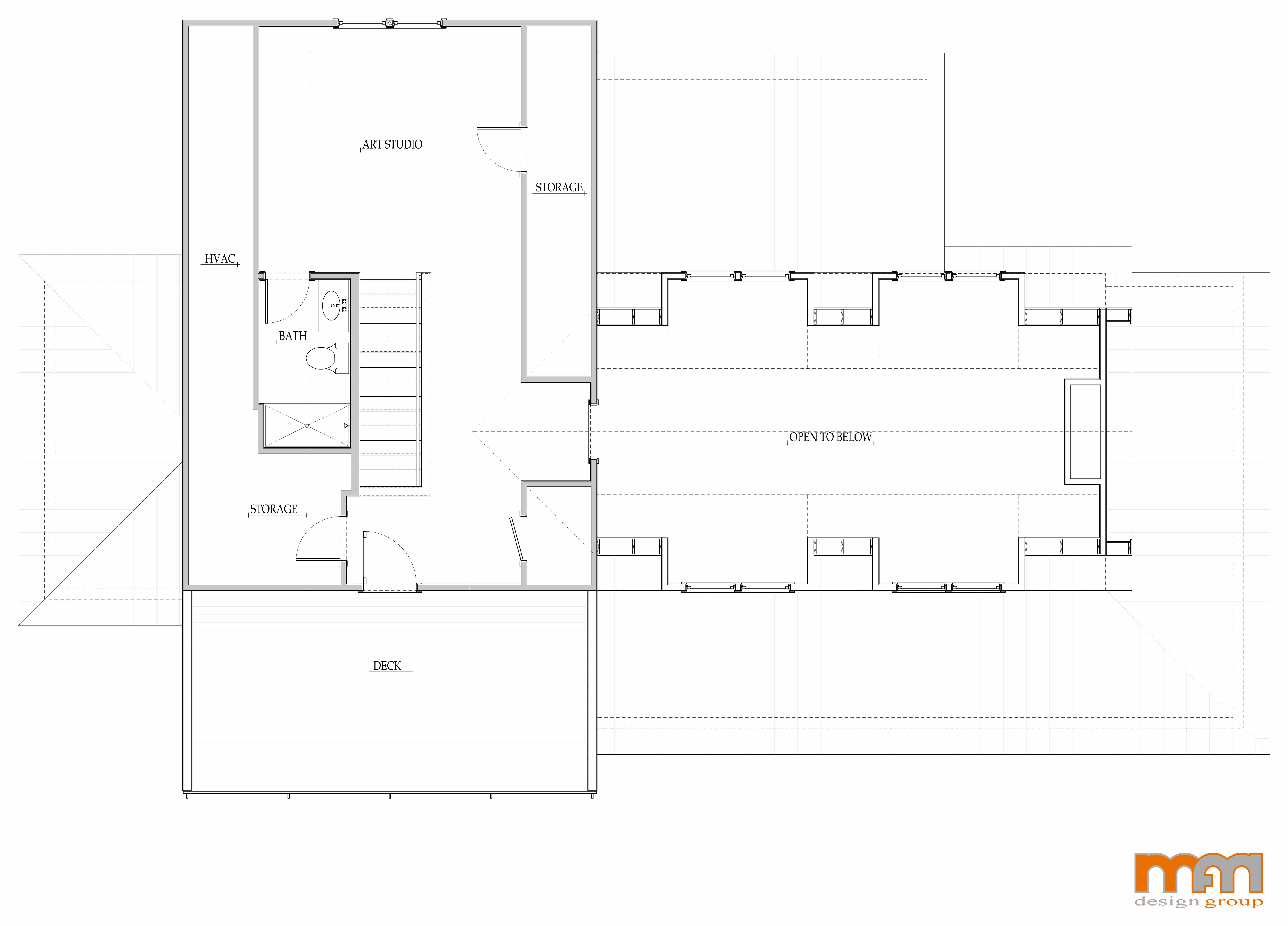
Art Studio | 2-Story Deck | Wrap-around Porch
Square Footage Breakdown
Total conditioned space: 2,222 sf
Front porch: 440 sf
Rear porch: 147 sf
Upper Deck: 260 sf
Beds / Baths
Bedrooms: 2
Full Bathrooms: 3
Garage
Type: Detached (not shown)
Area: 500 sf
Count: 2 cars
Foundation Type
Slab on grade
Total slab area: 2,342 sf
Dimensions
Width: 68′-6”
Depth: 43′-9”
Ceiling Heights
1st Floor: 9′-0”
2nd Floor: 10′-0”
Vaulted ceiling at great room
Wall Construction
Exterior walls: 0
Interior walls: 0
Farmhouse
Stacy Plan
2222 finished sf
2 Bedrooms
3 Bathrooms
2 Stories
Additional Features
Office | Home Theater | Game Room | Butler Pantry | Loft | Bar
| SQUARE FOOTAGE BREAKDOWN |
Total conditioned space: 2,222 sf
Front porch: 440 sf
Rear porch: 147 sf
Upper Deck: 260 sf
| BEDS/BATHS |
Bedrooms: 2
Full Bathrooms: 3
| GARAGE |
Type: Detached (not shown)
Area: 500 sf
Count: 2 cars
| FOUNDATION TYPE |
Slab on grade
Total slab area: 2,342 sf
| DIMENSIONS |
Width: 68′-6”
Depth: 43′-9”
| CEILING HEIGHTS |
1st Floor: 9′-0”
2nd Floor: 10′-0”
Vaulted ceiling at great room
| ROOF DETAILS |
Primary pitch: 12 on 12
Secondary pitch: 3 on 12
